
5、材质说明:
|
清 水 型 |
纸 浆 型 |
污水型 | |
|
泵体 |
HT200 |
HT250、ZG1Cr18Ni9Ti |
根据溶液的PH值不同而定 |
|
叶轮 |
HT200 |
球目铸铁、HT250、ZG1Cr18Ni9Ti | |
|
轴 |
45# |
45#、2Cr13 | |
|
泵盖 |
HT200 |
HT250、ZG1Cr18Ni9Ti | |
|
密封 |
填料密封 |
填料密封或机械密封 |
填料密封 |
|
型 号 |
额 定 性 能 |
功率 | |||||
|
流量
Q(m3/h) |
扬程
H(m) |
转速
n/(rpm) |
效率
(%) |
汽蚀
余量
(m) |
轴功率
(kw) |
配用功率
(kw)
与电机型号 | |
|
150HWZ-5 |
180 |
5 |
1450 |
82 |
3 |
2.99 |
4KW-4电机 |
|
150HWZ-12 |
180 |
12.5 |
1450 |
82 |
5.5 |
7.47 |
11KW-4电机 |
|
200HWZ-3 |
360 |
3 |
970 |
80 |
4 |
3.8 |
4KW-6电机 |
|
200HWZ-5 |
360 |
5 |
1450 |
80 |
5 |
5.85 |
7.5KW-4电机 |
|
200HWZ-8 |
450 |
8 |
1450 |
83.5 |
5 |
11.5 |
15KW-4电机 |
|
250HWZ-5 |
540 |
5 |
970 |
82 |
5 |
8.97 |
11KW-6电机 |
|
250HWZ-10 |
500 |
10 |
1450 |
80 |
6 |
19.5 |
22KW-4电机 |
|
300HWZ-4 |
720 |
4 |
730 |
82 |
4 |
9.6 |
11KW-8电机 |
|
300HW Z -8 |
900 |
8 |
970 |
84 |
5 |
23.1 |
30KW-6电机 |

|
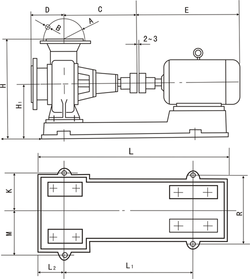
型 号 |
A |
B |
C |
D |
E |
H |
H1 |
L |
L1 |
L2 |
K |
M |
R |
|
150HWZ-5 |
Φ225 |
8-Φ
16 |
400 |
165 |
400 |
475 |
287 |
880 |
610 |
120 |
185 |
235 |
300 |
|
150HWZ-12 |
443 |
125 |
605 |
535 |
295 |
1010 |
830 |
95 |
215 |
395 | |||
|
200HWZ-3 |
Φ280 |
8-Φ17.5 |
455 |
190 |
515 |
585 |
350 |
1020 |
850 |
90 |
205 |
320 |
400 |
|
200HWZ-5 | |||||||||||||
|
200HWZ-8 |
650 | ||||||||||||
|
250HWZ-5 |
Φ335 |
12-Φ18 |
532 |
205 |
760 |
485 |
1260 |
855 |
210 |
315 |
380 |
600 | |
|
250HWZ-10 |
710 | ||||||||||||
|
300HWZ-4 |
Φ395 |
12-Φ20 |
617 |
280 |
885 |
435 |
1650 |
1090 |
280 |
360 |
460 |
530 | |
|
300HWZ-8 |
845 |
[上一个: HZW型卧式化工轴流泵]
[下一个: HW型混流泵]
靖江市万盛泵业有限公司
地址:江苏省靖江市西环地中海北门对面
电话:0523-84509093
传真:0523-84509093,84814758
联系人:刘先生 13952690119
销售部:张女士 18061028918
收藏本站
联系我们
网站地图





